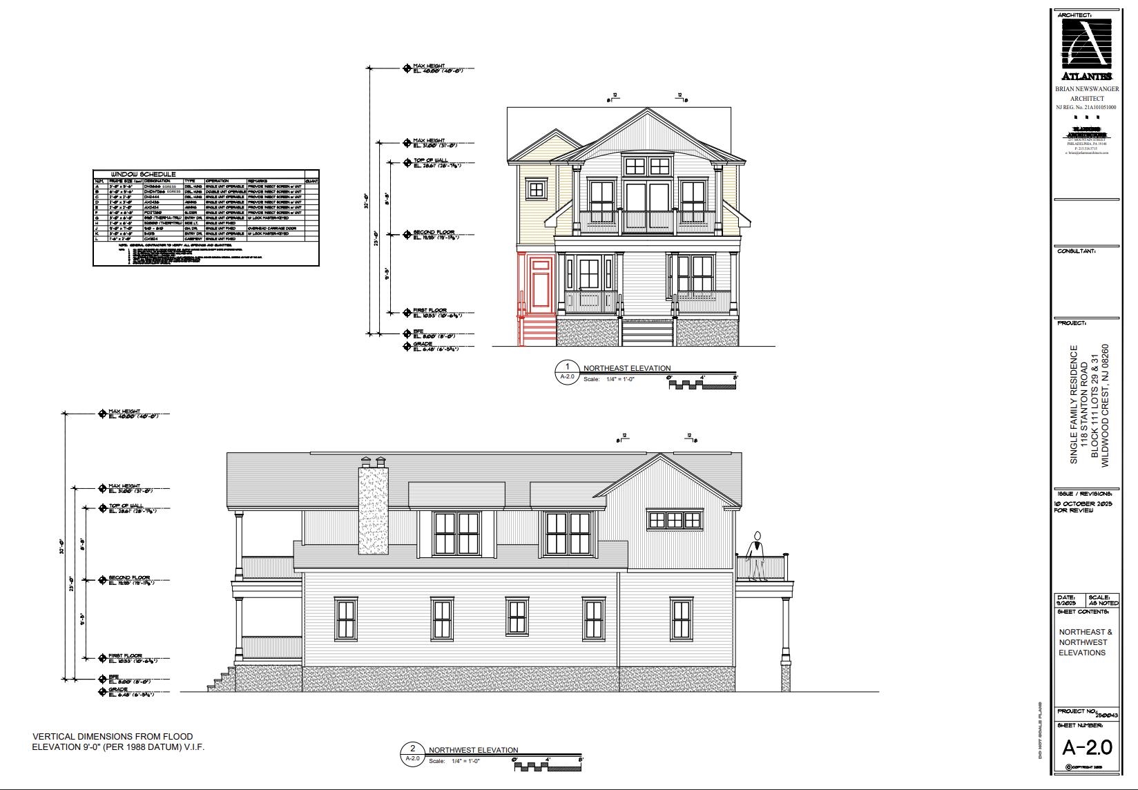
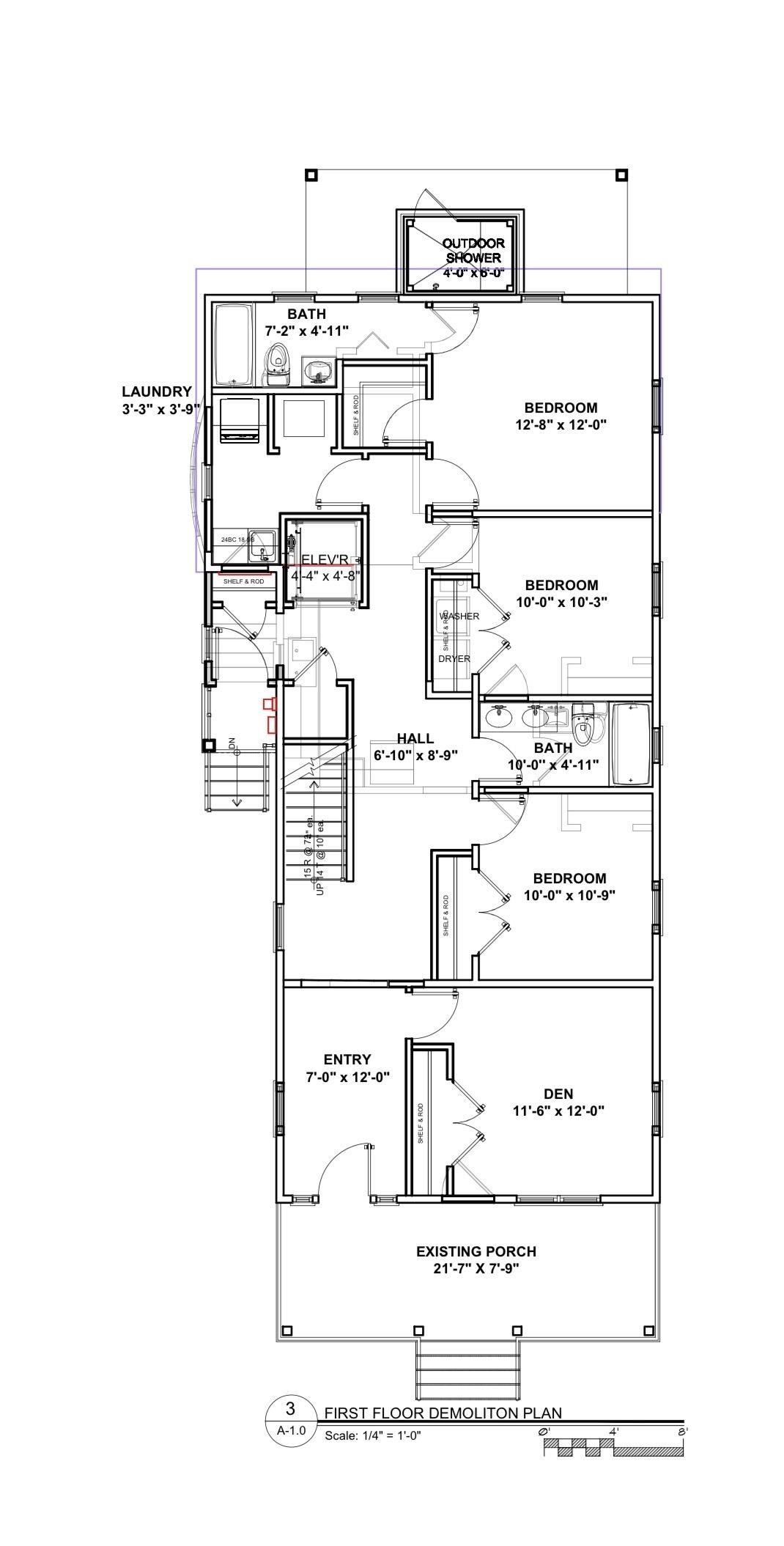
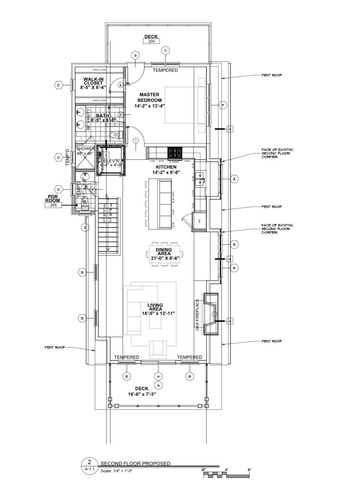
This beautiful renovation of a coastal home currently under construction in Wildwood Crest offers bay views and is estimated to be completed prior to Summer 2026. It includes 4 bedrooms, 3.5 baths and a separate den, and features an open-concept layout with luxury vinyl plank flooring throughout. The kitchen includes 42" white shaker cabinets, quartz countertops, under-cabinet lighting, soft-close drawers, stainless steel appliances, and island microwave. Primary suite features a walk-in shower. Additional highlights include LED recessed lighting, shaker-style doors with black hardware, two-zone gas HVAC, Navien tankless water heater, Andersen windows and sliders, GAF 30-year architectural shingle roof with metal accents, Hardie board siding in Gray Mist, PVC railings, outdoor shower, and off-street parking. Option for private elevator and select buyer customizations during construction. Image is a rendering. Please schedule appointments on Showing Time. See Additional Documents for spec sheet, elevations
AMENITIES
- Stainless steel appliance
- Deck
- Fenced Yard
- Heating:Gas Natural
- Heater:Gas- Natural
- Vinyl Flooring
- Cooling:Central Air Condition
- City
REQUEST INFORMATION
118 E Stanton Road, Wildwood Crest
For Sale: $2,225,000 / MLS: 260455
